Bituminous Membrane - External

D93 CONSTRUCTION MOVEMENT JOINT DETAIL OPTION 1
D94 CONSTRUCTION MOVEMENT JOINT DETAIL OPTION 2
D96 EXTERNAL INSULATED ROOFTOP WITH DRAINAGE CELL AND BALLAST (IRMA)
D97 EXTERNAL ROOFTOP WITH DRAINAGE CELL AND BALLAST (IRMA)
D100A HORIZONTAL REGLET TERMINATION DETAIL – OPTION 1
D100B HORIZONTAL REGLET TERMINATION DETAIL – OPTION 2
D105 TYPICAL ARDEX TORCH APPLIED MEMBRANE LAP DETAIL
D106 TYPICAL GREEN ROOF
D107 TYPICAL MEMBRANE ONE-WAY VENT DETAIL
D108 VERTICAL DOWNTURN TERMINATION WITH ARDEX PRESSURE SEAL
D109 VERTICAL OVER-FLASHING TERMINATION WITH ARDEX PROTECTIVE COATING
D110 VERTICAL REGLET TERMINATION & ARDEX PROTECTIVE COATING
D111 VERTICAL REGLET TERMINATION
D112 VERTICAL OVER-FLASHING TERMINATION
D113 VERTICAL TERMINATION WITH ARDEX PRESSURE SEAL AND ARDEX PROTECTIVE COATING
D114 VERTICAL TERMINATION WITH ARDEX PRESSURE SEAL
D198 EXTERNAL CLAMP DOWN WASTE OUTLET DETAIL – TWO LAYER MEMBRANE
D199 EXTERNAL DRAINAGE FLANGE OUTLET DETAIL – TWO LAYER MEMBRANE
D224 PIPE PENETRATION WITH ARDEX TORCH MEMBRANE
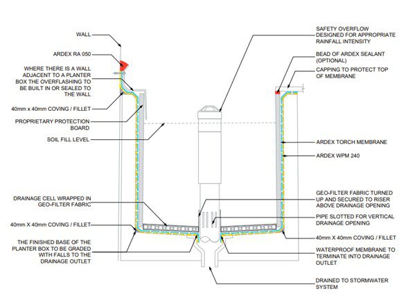
D247 TYPICAL PLANTER BOX CONSTRUCTION – WPM 188